VIVIENDAS UNIFAMILIARES SINGLE - FAMILY HOUSES

DESCRIPCIÓN   //   DESCRIPTION

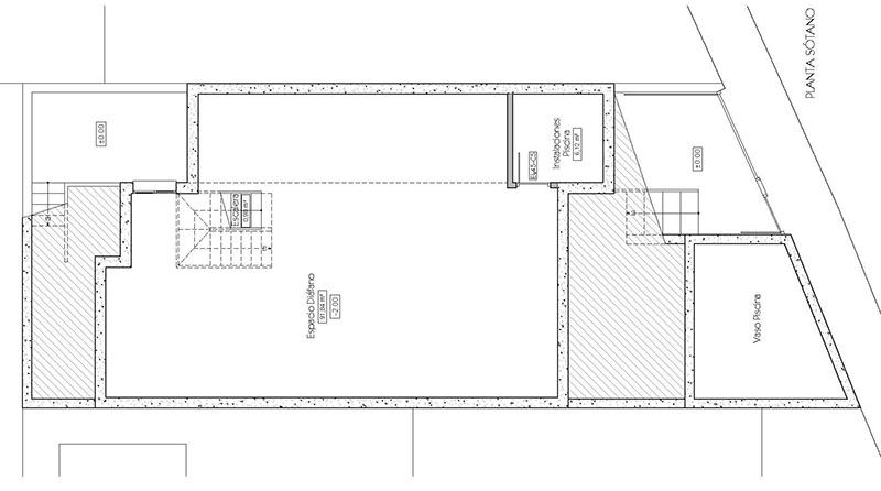
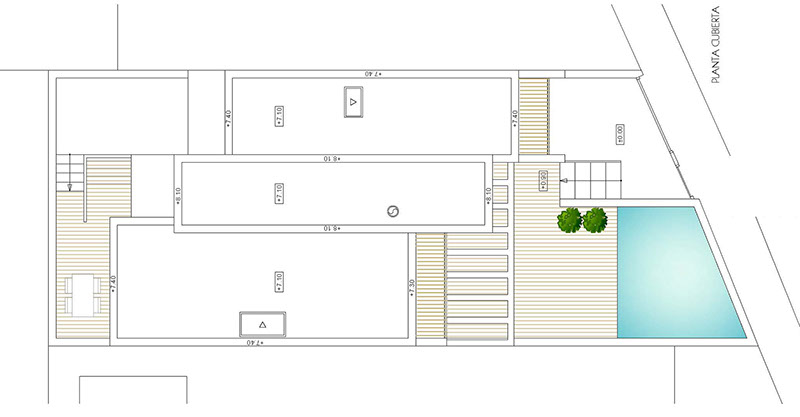
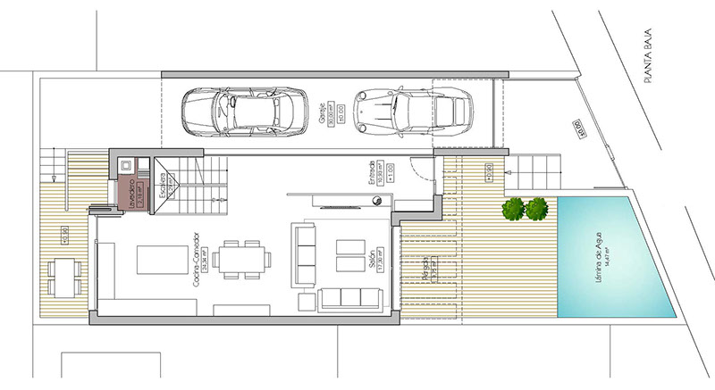
Unifamiliar Adosada con Piscina

SUPERFICIE   //    FLOOR AREA

308,30 m²

FASE   //   WORK PROGRESS

Elaboración de Proyecto

LOCALIZACIÓN   //   LOCATION

Ronda, Málaga

 

MACARIO FARIÑAS
INICIO
ESTUDIO
PROYECTOS
SERVICIOS
CONTACTO
INVERSORES

C/ Canales 10, Local 2B 29002 Málaga España.- T +34 952 91 97 97 - info@ferocaarquitectura.es