EDIFICIOS DE VIVIENDAS RESIDENTIAL BUILDINGS

DESCRIPCIÓN   //   DESCRIPTION

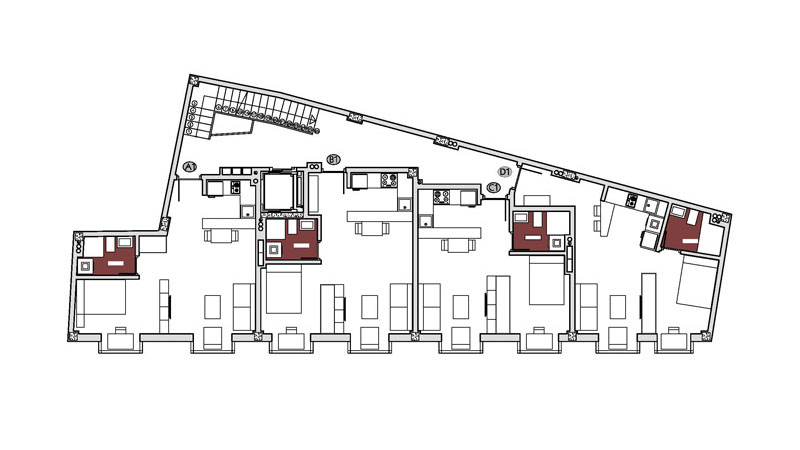
Viviendas y Locales Comerciales

SUPERFICIE   //    FLOOR AREA

665,00 m²

FASE   //   WORK PROGRESS

Elaboración de Proyecto

LOCALIZACIÓN   //   LOCATION

Málaga

 

S. FÉLIX CANTALICIO
INICIO
ESTUDIO
PROYECTOS
SERVICIOS
CONTACTO
INVERSORES

C/ Canales 10, Local 2B 29002 Málaga España.- T +34 952 91 97 97 - info@ferocaarquitectura.es